TRITON 19" jednodílný rozvaděč 12U/600mm
Popis a parametry
TRITON 19" jednodílný rozvaděč 12U/600mm
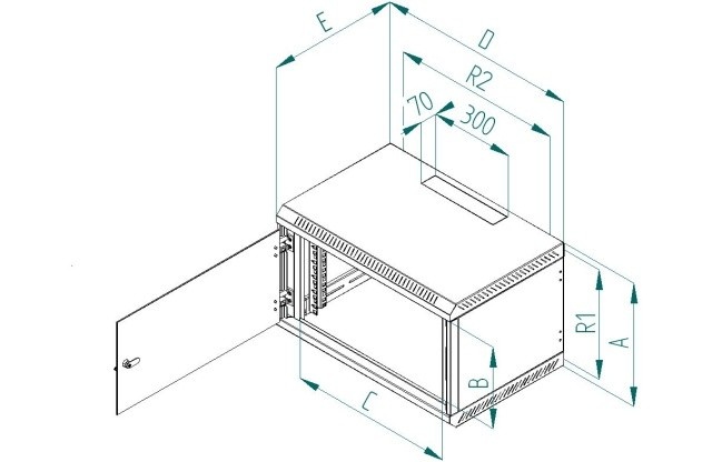
Rozvaděč Delta B je celosvařený nástěnný jednodílný rozvaděč s celoskleněnými dveřmi, které je možné díky masivním pantům otevřít pod úhlem téměř 180°.
- Šířka 19", hloubka rozvaděče 600mm (vnější rozměr)
- Důležitou součástí výrobku jsou otvory pro kabely, které jsou umístěny na horní a dolní stěně. Další dva otvory jsou umístěny na zadní stěně rozvaděče. Otvory jsou zaceleny vylamovacími záslepkami, které je možné vylomit s pomocí např. šroubováku.
- 19“ zařízení se instalují na vertikální lišty, které je možné plynule natavit podle potřeby do hloubky těla rozvaděče. Díky perforaci je zajištěna přirozená cirkulace vzduchu a chlazení komponentů.
Přesné rozměry a další technické údaje jsou uvedeny níže (hodnoty R1 a R2 označují rozteče montážních otvorů pro zavěšení rozvaděče na zeď). - Maximální zatížení rozvaděče je 30 kg.
Rozměry:
A – 635 mm
B – 530 mm
C – 490 mm
D – 600 mm
E – 595 mm
R1 – 859 mm
R2 – 420 mm
Hmotnost – 20,5 kg
Příbal:
Klíč - přední dveře 2x
Vrut 6x50 4x
Podložka 6,6 4x
Hmoždinka 10 4x
Plastová podložka 8x
Plovoucí matice M6 8x
Šroub M6x16 8x
Protiprachová záslepka 1x
ParametryPorovnání
Typ datového rozvaděče
Nástěnné 19"
Hloubka (mm)
600
Šířka (mm)
600
Výška rozvaděče (U)
12
TRITON 19" jednodílný rozvaděč 12U/600mm
Naposledy navštívené






